TR-8216A
FULL-HEIGHT TURNSTILES
Full-height turnstile made of a enveloping structure which houses a rotating arm with blades that are moved by the user. This model is specially conceived for indoor and outdoor perimeter installations without supervision.

Validation
- Compatible with any type of validation system.
- Possible operation via dry contacts, via RS232, RS485 ModBus and Ethernet. TCP/IP protocol available.
PASSAGE
- Mechanical, electromechanical or motorized mechanism,depending on the model. (see versions section).
- Unidirectional or bidirectional passage control.
- Single or double version available, depending on model.
- Self-centering system to ensure full rotation to the initial position and shock absorption system for smooth operation.
SECURITY
- Anti-backup ratchet to prevent reverse rotation.
- Guiding barrier for passage channelling.
- Closing barrier to prevent the passage of another person in the opposite direction when the blades are rotati
MANUFACTURING
- Made of AISI-304 or AISI-316 stainless steel, 1.5 mm thick, with satin finiish.
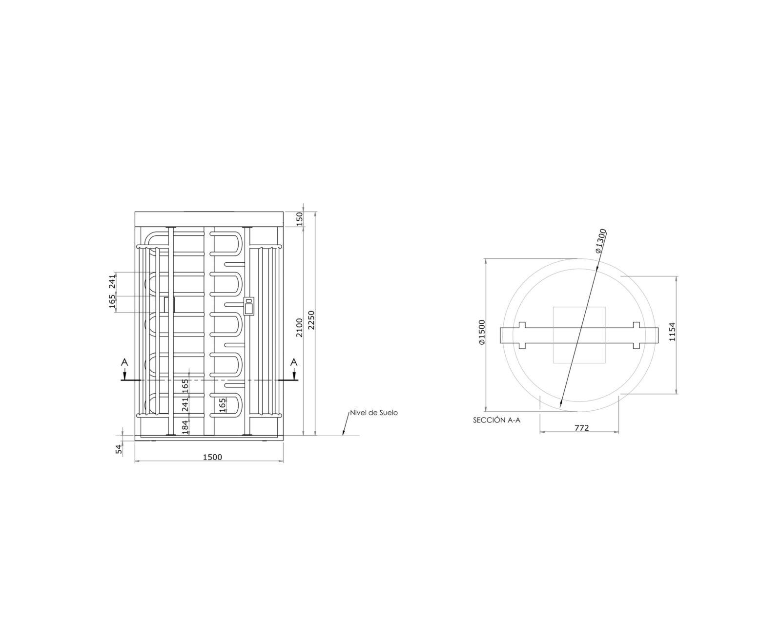
- Compartment dimensions specially designed for smooth traffic flow.
- A U-shaped beam that is set into the ground is provided to ensure a better stabilization of the rotating axle. Can be supplied withour the beam.
- Cataphoresis treated parts and bearings lubricated for life.
ELECTRONICS
- Universal power supply range. (100- 240 VAC 50/60 Hz).
- Easy configuration of the main parameters of the equipment via switches.
- Upgradable firmware for new functionalities.
INSTALLATION
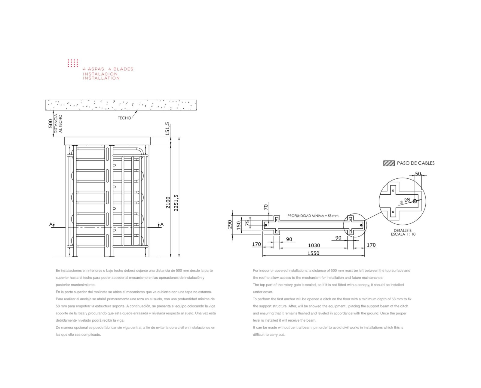
The full-height turnstile is supplied fully assembled and with the correct installation instructions. This is a simple operation; all that is needed, are holes in the ground to set the support beams into them. Once the beams are levelled with the ground, the full height turnstile can be placed.
Civil works are needed (ditchs in the ground) along with the electrical installation, depending on the control method to be used.
It can be made without central beam, in order to avoid the civil works in installations which this is difficult to carry out.
In indoor installations or in installations where the ceilling is not very height, a distance of 500 mm must be taken into account from the top of the full height turnstile to the ceiling to allow access to the mechanism for installation and subsequent maintenance.
IMPORTANT: The rest of the surface does not have water drain so it should always be protected from inclement weather by a roof or canopy protection.
transPort and Packaging
Given the dimensions and the supply conditions (fully assembled full height turnstile), it must be taken into consideration that for contractor, these units must be protected inside a wooden crate that increases their dimensions, especially their height and weight.
The standard dimensions would be 2.45 meters high by 1.7 m by 1.7 m. The total gross weight is 500 kg.
Safety conditions
The design of the system is based on achieving maximum security for protection of restricted areas. The space of the arm is suitably distributed for this purpose. The roof is also protected and it can be combined with supplementary closures such as canopies, in order to guarantee protection of the unit, and the user, from the inclemency of the weather.
On the electromechanical models, if there is a power cut the arms or blades are unblocked and it can turn freely.
Operation
Each passage allows for different modes of operation. The most significant are:
a. Free access.
b. Controlled access, with electric opening by any type of validation system.
c. Closed access.
To be Provided by the buyer
- Electrical power supply.
- Electrical wiring for power supply, command and control.
- Adequacy of the floor where it is to be installed.
Safety conditions
The design of the system is based on achieving maximum security for protection of restricted areas. The space of the arm is suitably distributed for this purpose. The roof is also protected
and it can be combined with supplementary closures such as canopies, in order to guarantee protection of the unit, and the user, from the inclemency of the weather. On the electromechanical models, if there is a power cut the arms or blades are unblocked and it can turn freely.
Validation
- Compatible with any type of validation system.
- Possible operation via dry contacts, via RS232, RS485 ModBus and Ethernet. TCP/IP protocol available.
PASSAGE
- Mechanical, electromechanical or motorized mechanism,depending on the model. (see versions section).
- Unidirectional or bidirectional passage control.
- Single or double version available, depending on model.
- Self-centering system to ensure full rotation to the initial position and shock absorption system for smooth operation.
SECURITY
- Anti-backup ratchet to prevent reverse rotation.
- Guiding barrier for passage channelling.
- Closing barrier to prevent the passage of another person in the opposite direction when the blades are rotati
MANUFACTURING
- Made of AISI-304 or AISI-316 stainless steel, 1.5 mm thick, with satin finiish.
- Compartment dimensions specially designed for smooth traffic flow.
- A U-shaped beam that is set into the ground is provided to ensure a better stabilization of the rotating axle. Can be supplied withour the beam.
- Cataphoresis treated parts and bearings lubricated for life.
ELECTRONICS
- Universal power supply range. (100- 240 VAC 50/60 Hz).
- Easy configuration of the main parameters of the equipment via switches.
- Upgradable firmware for new functionalities.
INSTALLATION
The full-height turnstile is supplied fully assembled and with the correct installation instructions. This is a simple operation; all that is needed, are holes in the ground to set the support beams into them. Once the beams are levelled with the ground, the full height turnstile can be placed.
Civil works are needed (ditchs in the ground) along with the electrical installation, depending on the control method to be used.
It can be made without central beam, in order to avoid the civil works in installations which this is difficult to carry out.
In indoor installations or in installations where the ceilling is not very height, a distance of 500 mm must be taken into account from the top of the full height turnstile to the ceiling to allow access to the mechanism for installation and subsequent maintenance.
IMPORTANT: The rest of the surface does not have water drain so it should always be protected from inclement weather by a roof or canopy protection.
transPort and Packaging
Given the dimensions and the supply conditions (fully assembled full height turnstile), it must be taken into consideration that for contractor, these units must be protected inside a wooden crate that increases their dimensions, especially their height and weight.
The standard dimensions would be 2.45 meters high by 1.7 m by 1.7 m. The total gross weight is 500 kg.
Safety conditions
The design of the system is based on achieving maximum security for protection of restricted areas. The space of the arm is suitably distributed for this purpose. The roof is also protected and it can be combined with supplementary closures such as canopies, in order to guarantee protection of the unit, and the user, from the inclemency of the weather.
On the electromechanical models, if there is a power cut the arms or blades are unblocked and it can turn freely.
Operation
Each passage allows for different modes of operation. The most significant are:
a. Free access.
b. Controlled access, with electric opening by any type of validation system.
c. Closed access.
To be Provided by the buyer
- Electrical power supply.
- Electrical wiring for power supply, command and control.
- Adequacy of the floor where it is to be installed.
Safety conditions
The design of the system is based on achieving maximum security for protection of restricted areas. The space of the arm is suitably distributed for this purpose. The roof is also protected
and it can be combined with supplementary closures such as canopies, in order to guarantee protection of the unit, and the user, from the inclemency of the weather. On the electromechanical models, if there is a power cut the arms or blades are unblocked and it can turn freely.

Data sheet
| Concepto | Valor |
|---|---|
| Material | AISI 304 or 316 Stainless Steel |
| Power supply | 100-240 VAC 50/60Hz |
| Circuit Breaker | 6A |
| Working voltage | 24 VDC |
| Maximum Consumption / Rest | 30 W |
| Operating temperature | -10º a + 50º |
| Humidity | 90% |
| Net weight | 230 kg |
| Security level | Medium |
| Steps / minute | Up to 30 |
* El Consumo Máximo indicado no tiene en cuenta accesorios opcionales.
CABINET ADAPTATIONS
1. Possibility of making adaptations to the cabinet, according to the needs of the client.
2. Custom housings and machining to accommodate the readers and pictograms.

COMPLEMENTARY DOORS
One-way or bi-directional, electromechanical and spe- cial width doors. (with or without panic bar).

VISIBILITY AND AESTHECTICS
1. Indicative pictograms and front pictograms.
2. Special Lighting for full height turnstiles
3. Possibility of painting the equipment in different
colours according to RAL char
PROTECTION FOR OUTDOORS
Outdoor protective canopy.
Top cover for exclusive protection of the central area where the mechanism and electronics are located.
AISI 316 stainless steel for outdoor and indoor environments where humidity, salinity and/or corrosion are present.
COMPLEMENTS
See accessories section in the general catalogue
. Capacity control systems integrated in the equipment itself or through software.
. Passage counters, card-collecting boxes and command and control consoles.
. Totems or posts.
. Fixed or removable railings for enclosing or for forming
walkways.
TR-8216A
BLUEPRINTS






Popover content
